Details
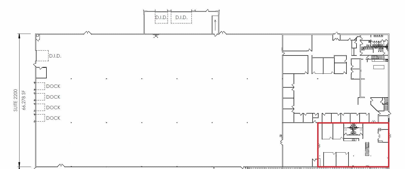
Address
2200 Highway 13 West, Burnsville MN 55337
Space Available
Front Office
Building Size
115,706 Square Feet
Office Square Footage
4,000 Square Feet
Rental Rate
Negotiable
Floor
1
Year Built
1986
Date Available
Now
Additional Information
Additional office and warehouse spaces available for sublease. Click on options below for more information.
Floor Plan
