Details
Address
2200 Highway 13 West
Burnsville, MN 55337
Building Size
115,706 Square Feet
Space Available
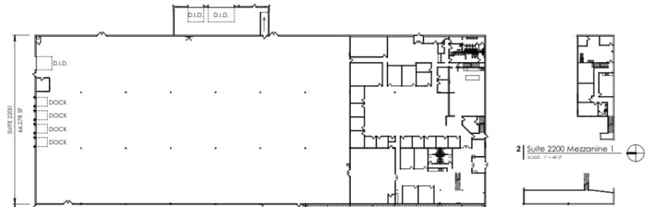
Suite 2200
Office Square Footage
5,100 Square Feet
Warehouse Square Footage
44,700 Square Feet
Total Square Footage
53,140 Square Feet
Rental Rate
Negotiable
Year Built
1986
Ceiling Clear Height
18'
Loading Access
4 Dock Doors
3 Drive-in Doors
Date Available
After December 25, 2025
Additional Information
Additional office and warehouse spaces available for sublease. Click on options below for more information.
Floor Plan
