Details
Address
1205 Cliff Road East, Burnsville MN 55337
Building Size
66,860 Square Feet
Space Available
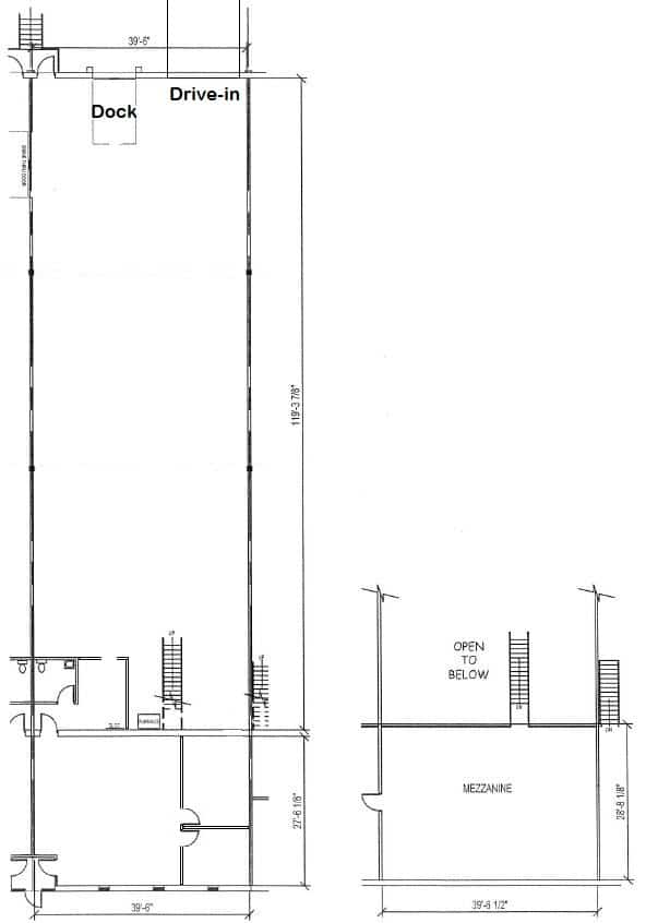
Suite 1205
Office Square Footage
1,200 Square Feet
Warehouse Square Footage
4,800 Square Feet
Mezzanine Square Footage
1,200 Square Feet
Total Square Footage
6,000 Square Feet
Rental Rate
$6,125.00/month (plus utilities)
Year Built
1976
Ceiling Clear Height
20'
Loading Access
1 Dock and 1 Drive-in Door
Date Available
Now
Floor Plan
